De Katerheidemolen

Bijgewerkt:
27/10/2025
Katerheidemolen 1
Katerheidemolen 1

Deze oude windmolen is door de Heren van Hoogstraten gebouwd in 1774. Rond 1821 verkocht Prins Constantijn Alexander Jozef van Salm-Salm, derde Hertog van Hoogstraten, de molen aan Baron Petrus De Caters, die een groot deel van de Katerheide bezat. De Caerderheydemolen was een stenen banmolen, d.w.z. de inwoners van de Heerlijkheid Ekeren waren verplicht hier hun graan te laten malen. In 1885 verkocht baron de Caters de molen aan dokter De Cnaep uit Ekeren.

Katerheidemolen 2

Tot de laatste molenaars behoorden de families Petrus Bogaerts en Viktor Janssens. Tijdens WO I verdwenen de wieken en de gebroeders August en Louis Janssens maalden verder mechanisch het graan. Na WO II geraakte de molen in verval. De gemeente Brasschaat kocht in 1961 de bakstenen romp. Jarenlang werd er gediscussieerd of de molen zou gerestaureerd of afgebroken worden. Uiteindelijk fungeerde de romp met bijgebouwde veranda naar het ontwerp van architect Marc Van den Eynde vanaf 1983 als mini-cultureel centrum.

Er werden kleinkunstavonden georganiseerd, tentoonstellingen van Kunstkring Caerde. Het MOAF platform (Mariaburg, ontspanning, actie, fictie) organiseerde enkele jaren andere culturele activiteiten zoals ontmoetingen met dichters en schrijvers…

In 2013 werd de veranda die een tijdlang als restaurant dienst deed, afgebroken.

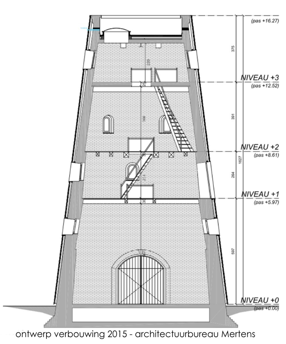
In de volgende jaren deed hij dienst als kinderopvang en tijdelijk onderkomen voor de natuurvoedings-winkel 'Groene Wijzer' en de naburige fietsenhandel. In 2015 werd de romp in opdracht van de gemeente Brasschaat met shingles in cederhout bekleed, naar een ontwerp van architectenbureau Mertens uit Stabroek.

Momenteel (2021) is er een Taperia gevestigd, uitgebaat door de achterkleinzoon van molenaar Viktor Janssens. Zo kan het nieuw aangelegde Molenplein bij mooi weer terug als rustpunt voor fietsers en wandelaars dienst doen.

Katerheidemolen 3
Katerheidemolen 4
Katerheidemolen 5