Fort van Brasschaat en Antitankgracht

Bijgewerkt:
27/10/2025
Fort van Brasschaat, ingang

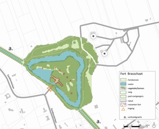
Het fort is gebouwd in 1909-1912. De gebouwen van ongewapend beton staan op een driehoekig forteiland. Het is een zogenaamd tweede-ordefort met aangehechte reverscaponnières. Dit betekent dat de grachtverdediging primair geschiedde door vóór het hoofdfront geplaatste geschutstellingen. Deze waren via een betonnen gang met het hoofdfront verbonden. In de reverscaponnières waren zes snelvuurkanonnen van 5,7 cm op plaataffuit geplaatst en twee onder koepels. De snelvuurkanonnen konden granaten afvuren (met een dracht van 2500 m of kartetsen met een dracht van 300 m).

De bewapening van het fort voor grote afstand bestond uit één koepel met twee 15 cm kanonnen, twee koepels voor een 12 cm houwitser, vier koepels voor een 7,5 cm kanon. Voor de ondersteuning van het geschut werden twee gepantserde waarnemingsklokken geplaatst. Het 15 cm geschut had een dracht van 8400 m. Naast de grachtverdediging in de reverscaponnières was er een grachtverdediging van vier 5,7 cm snelvuurkanonnen (in de zogenaamde traditore batterij) en een zogenaamd groot-flankement (eveneens in de traditore batterij), dat wil zeggen vuur tussen de forten (vier 7,5 cm en vier 12 cm kanonnen).

Het fort van Brasschaat telde ca. 330 manschappen. Tijdens de Eerste Wereldoorlog werden er loopgraven gegraven en prikkeldraad gezet.
De betonnen muren en koepels van de fortengordel waren ontworpen om bestand te zijn tegen 28 cm geschut. De Duitsers beschikten echter over zwaarder geschut in de vorm van de Skoda Motor Mörser met 30,5 cm kaliber en de Dikke Bertha met een kaliber van 42 cm. De Duitsers vielen de fortengordel aan de Zuidoostkant aan. Achtereenvolgens werden de forten Walem, Sint Katelijne Waver, Lier, Koningshooikt en Kessel uitgeschakeld in de periode van 2 tot 9 oktober 1914. Daarmee was de Stelling van Antwerpen onhoudbaar geworden. Het Belgische leger trok zich na de opgave van Antwerpen terug op de IJzerlinie in de Westhoek. In de Eerste Wereldoorlog kwam Fort Brasschaat dus helemaal niet in actie.

Voor de Tweede Wereldoorlog werden er aanpassingswerken uitgevoerd aan het fort. Dit betrof vooral aanpassingen voor het gebruik van mitrailleurs. Hiervoor werden zgn. abri-tourelles en abri élémentaires gebouwd, ronde betonnen koepels, als ondersteuning van de mitrailleurs. Verder werden moderniseringen doorgevoerd als gasdichte lokalen, verbeterde verblijfsruimten en verbeterde communicatie.

Fort van Brasschaat, vernielde zijvleugel

Eind jaren zeventig heeft het Belgische leger getracht het fort op te blazen met dynamiet. Dat lukte onvoldoende, het bleek een te zware klus voor de genie. De verwoesting van de linkervleugel van het fort is daarvan het gevolg geweest. Momenteel doet het fort vooral dienst als overwinteringsverblijf voor vleermuizen. In de winters van 2008 en 2009 werden meer dan 800 exemplaren in een zevental soorten geteld. Ook groeien er enkele kalkminnende zeldzame planten, zoals de zwartsteelvaren. Het fort is militair eigendom en niet toegankelijk.

Fort van Brasschaat, ingang

Het monument aan het fort van Brasschaat is een herdenkingsmonument voor de slachtoffers van een oefening in 1937. Dit monument wordt het cavaleriemonument genoemd en tot 2011 werden er herdenkingen gedaan. Na de tweede wereldoorlog werd het fort in gebruik genomen als munitieopslagplaats. Gezien dit toch niet de meest aangewezen plek is om aan munitieopslag te doen, wordt begin de jaren zeventig de munitiedepot in het Klein Schietveld gebouwd. Dit depot wordt onder het toedoen van de burgemeester van Kapellen gesloten begin de jaren tweeduizend en de munitie wordt over naar een Waals munitiedepot.

Fort van Brasschaat, grondplan

Antitankgracht

Tussen beide wereldoorlogen (1937-1939) versterkte het leger de ‘Stelling van Antwerpen’ met een 33 kilometer lange Antitankgracht die de forten met elkaar verbond. Doel van deze gracht was Antwerpen beschermen tegen een mogelijke Duitse aanval met tanks. Aanvankelijk begon men met de aanleg van een droge gracht. Aangezien deze snel vol met water liep, besloot men alsnog tot het aanleggen van een natte gracht. Deze werd minstens 6 meter breed en 3 meter diep, met een minimum waterstand van 2 meter. De taluds hebben een helling van 63.4°. Een onoverbrugbare helling voor pantservoertuigen van vóór de Tweede Wereldoorlog. Het hoogteverschil bedraagt meer dan 13 meter tussen het laagste punt (3 meter boven zeespiegel) in de polders van Berendrecht en het hoogste punt (16,5 meter boven zeespiegel) in Brasschaat en Sint-Job-in-’t-Goor (Brecht).

De Antitankgracht wordt grotendeels gevoed door het kanaal Dessel -Turnhout - Schoten. Door de hoogteverschillen in het gebied werd de gracht verdeeld in zestien panden, gescheiden door vijftien betonnen stuwsluizen. Bij dertien sluizen zijn ter bescherming sluisbunkers gebouwd. Ook op andere plekken zijn er bunkers gebouwd.

Fort van Brasschaat, antitankgracht

Een aantal beken en kunstmatige waterlopen zijn via duikers onder de Antitankgracht doorgeleid. Door deze duikers af te dammen, konden de gronden aan de oostzijde van de gracht gebruikt worden voor inundaties. De gracht heeft een zaagvormig tracé, bestaande uit rechte stukken met een stompe hoek. Op deze hoeken stond er afweergeschut.

 

Het tracé en profiel van de gracht zijn nog vrij gaaf. Alle metalen bruggen zijn echter vervangen door aarden dammen. Sommige delen van de Antitankgracht verdwenen na de Tweede Wereldoorlog door de havenuitbreiding en wegenaanleg. In Berendrecht is de gracht verdwenen door de aanleg van het Kanaaldok en het Delwaidedok. Ten zuiden van de kruising met het kanaal Dessel - Turnhout - Schoten (in Sint-Job-in-‘t-Goor, Brecht) is de gracht over enkele honderden meters gedempt. Tenslotte is ook een deel bij de monding aan het Albertkanaal gedempt. De Antitankgracht loopt dood op de E34 te Oelegem (Ranst).


Na 1960 was de overheid van plan om de Antitankgracht uit te bouwen tot een duwvaartkanaal. Maar in 1994 is dit plan begraven door de Antitankgracht te beschermen als landschap. Er zijn nog 48 bunkers en een aantal sluizen aanwezig.