Hof ten Bos

Bijgewerkt:
27/10/2025
Hof ten Bos 1

Origineel plan uit 1937

Hof ten Bos, bouwplan 1937

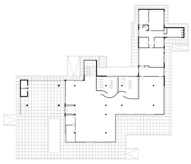
Uitbreiding 1979

Hof ten Bos, bouwplan 1979

Uitbreiding 2003, nieuwe slaapvleugel

Hof ten Bos, bouwplan 2003

Hersteloord voor zieke kinderen

Hof Ten Bosch, ontworpen in 1937 door architect Léon Stynen in samenwerking met Gustave Wauters, is oorspronkelijk een hersteloord voor kinderen die voornamelijk worden getroffen door tuberculose (Tuberculose is een besmettelijke en besmettelijke ziekte veroorzaakt door de Mycobacterium). Bouwheer was de vzw Interprofessionele Kas voor Gezinsvergoedingen.

Hof ten Bos, oude advertentie

Uit het architectuurtijdschrift “Bâtir” nr. 70 van september 1938

De geschiedenis van het gebouw begint in 1926, wanneer de Antwerpse ondernemer François Constant Edouard Ceurvorst een stuk land koopt tussen de "Hooge Caertsche Baan", de "Leege Caertsche Baan" en de "Groot Mishagendreef" in de gemeente Brasschaat. Hij bouwde een weekendhuisje op het terrein en noemt zijn eigendom "Hof Ten Bosch".

In 1931 kocht de vzw Interprofessionele Kas voor Gezinsvergoedingen het pand en besloot om daar een hersteloord te bouwen voor kinderen met tuberculose. Aan architect Léon Stynen wordt een ontwerp gevraagd voor de realisatie van de plannen en het toezicht van het project. De naam die François Constant Edouard Ceurvorst aan zijn eigendom gaf - Hof Ten Bosch -wordt overgenomen voor het toekomstige sanatorium.

De berekeningen met betrekking tot de structuur van het Hof Ten Bos Sanatorium werden uitgevoerd door de ingenieur Léon Vereecke, afkomstig uit Antwerpen. De belangrijkste volumestructuur bestaat uit een gewapend betonskelet. Dat samengesteld is door balken en kolommen versterkt door ribben, met een gewapend betonnen vloerplaat.

Het gebouw is staat redelijk ver van de openbare weg verwijderd om een belangrijkere link te creëren met de bosrijke omgeving.

Hof ten Bos 1

Het plan dat in 1937 door Léon Stynen is getekend, heeft een "L" -vormige opstelling en bestaat uit twee verdiepingen. Om binnen te komen, moeten bezoekers door een overdekte buitenruimte gaan - een verlenging van het plafond van het gelijkvloers - ondersteund door een reeks kolommen. De ingang geeft rechtstreeks uit op de hoofdruimte, die verbinding geeft tot andere interne functies. Ten zuiden van de hal ligt een speelruimte, gekoppeld aan het buitenterras door grote schuiframen.

De hal geeft ook toegang tot sanitaire faciliteiten, verborgen door gebogen muren. Deze muren zijn versierd met werk van kunstschilder Julien Van Vlasselaer.

Hof ten Bos, muurkunst

Alle dienstlokalen bevinden zich in de noordvleugel van het gebouw, net achter de eetzaal. Deze vleugel bevat een grote keuken, een opslagruimte, maar ook een wasruimte. De vrij monumentale trap geeft toegang tot privéruimtes op de bovenste verdieping. De eerste verdieping is volledig symmetrisch verdeeld met twee grote slaapzalen; de jongens verblijven in het zuidwesten en de meisjes in het noordoosten. Tussen deze twee slaapzalen is een ruimte voorzien van wastafels en kasten. Vanuit deze ruimtes hebben kinderen toegang tot een groot terras dat wordt gebruikt voor ochtendoefeningen. Achter de slaapzalen zijn twee kamers voor de surveillanten en verder toiletten, voetbaden, douches en, op het einde van de gang, een badkamer.

Over het algemeen hebben de ruimtes aan de zuidkant van het gebouw grote schuiframen waardoor een maximale lichtinval en gezonde luchttoevoer in het gebouw mogelijk is. De tuinaanleg is van de hand van Maurice Senecaut.

Hof ten Bos, slaapzaal

Aanzienlijke projectwijzigingen

Het Hof Ten Bos Sanatorium heeft in de loop van de tijd veel wijzigingen ondergaan, zowel in termen van het interne programma als op architectuurniveau. In 1948 werd een eerste verlenging ten noorden van het gebouw gemaakt om twee nieuwe klaslokalen te ontwerpen. De kruising tussen deze gele bakstenen extensie en het reeds bestaande volume gaat via de traphal. Origineel was het terras voor de zonnebanken niet bedekt met een dak. Er werd een dak over geplaatst zonder toezicht of zelfs de goedkeuring van Léon Stynyen.

In 1959 verkocht de vzw Kas voor Gezinsvergoedingen het eigendom. Het gemeenschapsonderwijs koopt het pand en besluit een internaat in het gebouw te installeren. Op 1 september 1960 opende een internaat voor jongens zijn deuren.

In 1979 kwam er een uitbereiding met enkele extra atelier-lokalen. Later moest de kostschool jonge meisjes verwelkomen, enerzijds wegens gebrek aan interesse jegens kostscholen in het algemeen, maar ook, omdat een internaat voor meisjes in Schoten was gesloten. De werkplekken en meisjeskamers werden geïnstalleerd in de villa ten noorden van het pand. Activiteiten zoals maaltijden of momenten van spelen vonden plaats in het hoofdgebouw.
In 2000, na een inspectie van brandveiligheid, werden een aantal ruimten van het internaat enigszins aangepast omwille van brandnormen.
In 2001 heeft het "Gemeenschapsonderwijs" beslist een volledige nieuwbouw op te richten voor de internen, jongens en meisjes.

Een open competitie wordt gelanceerd als onderdeel van de "Open Oproep" voor de realisatie van deze extensie. Architectenbureaus zoals Dinet, Foubert en partners, Van hunsel Herman en Van hunsel Marian, SAR, Slesers-Martens en ZED-architecten nemen eraan deel. Het kantoor van ZED-architecten won de wedstrijd.

Hof ten Bos 2

Op 3 april 1995 wordt het Hof ten Bos erkend als Beschermd Monument, enerzijds voor de zeer specifieke benadering van kinderen met tuberculose en anderzijds voor uitzonderlijk hoge waarde van de architectuur.

Architect Léon Stynen

Weinig Belgische architecten hebben zo’n markant en verscheiden oeuvre nagelaten als Léon Stynen (1899-1990) kreeg zijn opleiding tot architect aan de Antwerpse academie. Naast de realisatie van een belangrijk architecturaal oeuvre speelde hij ook een grote rol in de ontwikkeling van het architectuuronderwijs en de uitbouw van beroepsstructuren in België. Hij werd in 1948 directeur van de architectuurafdeling van de academie van Antwerpen. In 1950 volgde hij Herman Teirlinck op als derde directeur van het Hoger Instituut voor de Sierkunsten Ter Kameren. In 1963 werd hij de eerste nationale voorzitter van de toen opgerichte Orde van Architecten. In 1939 ontwierp Stynen samen met Henry van de Velde en Victor Bourgeois het Belgisch paviljoen voor de wereldtentoonstelling in New York. Bekende gebouwen van Stynen zijn de Singel, de BP-building, de casino’s van Oostende en Knokke.

Léon Stynen, architect